Количество пользователей15
Залповый сброс900 л
Объём переработки3.8 м3/сут
Насоснет
Глубина залегания трубы от 40 до 80см
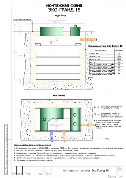
Высота2.53 м
Длина2.12 м
Ширина1.12 м
Вес380 кг
Гарантия производителя3 года
Гарантия на пуско-наладочные работы (шеф монтаж):1 год
Гарантия при монтаже «под ключ»:1 год
Потребляемая энергия2.3 кВт/сут
ПроизводительЭко-Гранд
Документация Эко-Гранд 15
| Название | Объём переработки, м3/сут | Залповый сброс, л |
Глубина залегания подводящей трубы, см | Тип сброса | Размеры, м | Вес, кг |
|---|---|---|---|---|---|---|
| Эко-Гранд 15 | 3.8 | 900 | до 80 | Самотечный | 2.12 x 1.12 x 2.53 | 380 |
| Эко-Гранд 15 Пр | Принудительный | 2.12 x 1.12 x 2.53 | 380 | |||
| Эко-Гранд 15 Лонг | Самотечный | 2.12 x 1.12 x 3.03 | 430 | |||
| Эко-Гранд 15 Лонг Пр | Принудительный | 2.12 x 1.12 x 3.03 | 430 |
Стандартная комплектация поставки Станции Биологической Очистки "Эко-Гранд 15"
| Септик | Шеф-монтаж | Монтаж в определенный тип грунта | Монтаж под ключ | |||
|---|---|---|---|---|---|---|
| Песок | Суглинок | Глина | Плывун | |||
| Эко-Гранд 15 | 14 688 руб. | 45 000 руб. | 45 000 руб. | 45 000 руб. | 60 000 руб. | 312 750 руб. |
Септик Эко-Гранд 15 представляет собой квадратную емкость, разделенную на четыре отсека, которые между собой поделены перегородками. В двух отсеках установлены аэраторы. В установке имеются три эрлифта, предназначенные для последовательного перекачивания очищаемых стоков в камеры и удаления ила. На аэраторы и эрлифты подается воздух компрессорами, расположенными в приборном отсеке. Установка оборудована съемной утепленной водонепроницаемой крышкой с дефлектором для забора воздуха из окружающей среды. Принцип работы установок основан на использовании биологической очистки и процесса окисления органических веществ сточной воды с помощью пневматической низконапорной аэрации кислородом воздуха. Установки в ходе эксплуатации не выделяют неприятного запаха. Предприятие-изготовитель оставляет за собой право вносить в конструкцию установок непринципиальные изменения и усовершенствования, повышающие их надежность и улучшающие условия эксплуатации, без отражения их в настоящем паспорте.
| Основные | |||
| Количество пользователей | 15 | 15 | 15 |
| Залповый сброс, л | 800 | 1025 | 800 |
| Объём переработки, м3/сут | 3 | 3 | 3 |
| Насос | нет | нет | нет |
| Глубина залегания трубы, см | от 60 до 120 | до 60 | до 60 |
| Высота, м | 2 | 2.38 | 2.8 |
| Длина, м | 2 | 1.93 | 2.1 |
| Ширина, м | 2 | 1.93 | 1.9 |
| Вес, кг | 240 | 325 | 284 |
| Гарантия производителя | 5 лет | 5 лет | 3 года |
| Гарантия на пуско-наладочные работы (шеф монтаж): | 1 год | 1 год | 1 год |
| Гарантия при монтаже «под ключ»: | 1 год | 1 год | 1 год |
| Потребляемая энергия, кВт/сут | 22.8 | 0.4 | |
| Производитель | ГРИНЛОС | Евробион | Евролос |
