Количество пользователей20
Залповый сброс1000 л
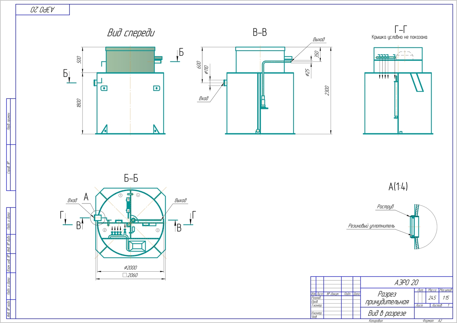
Объём переработки3.5 м3/сут
Насоснет
Глубина залегания трубы 60см
Высота2.3 м
Длина2 м
Ширина2 м
Вес245 кг
Гарантия производителя5 лет
Гарантия на пуско-наладочные работы (шеф монтаж):1 год
Гарантия при монтаже «под ключ»:1 год
Потребляемая энергия2.5 кВт/сут
ПроизводительГРИНЛОС
Документация
ГРИНЛОС Аэро 20 Пр – это септик со встроенным насосом, который обеспечивает принудительный отвод чистой воды в точку сброса. Этот процесс является полностью автоматическим, отвод воды осуществляется в канаву, дренажный элемент или колодец. Применение данной модели рекомендуется в регионах с уровнем грунтовых вод выше нормы и при условии, что глубина врезки канализационной трубы до 60 см.
В комплект поставки септика ГРИНЛОС Аэро 20 Пр входят следующие комплектующие:
Запасные части и дополнительное оборудование поставляются по отдельному заказу.
| Септик | Шеф-монтаж | Монтаж в определенный тип грунта | Монтаж под ключ | |||
|---|---|---|---|---|---|---|
| Песок | Суглинок | Глина | Плывун | |||
| ГРИНЛОС Аэро 20 Пр | 9 000 руб. | 50 000 руб. | 50 000 руб. | 50 000 руб. | 65 000 руб. | 386 600 руб. |
| Основные | |||
| Количество пользователей | 20 | 20 | 20 |
| Залповый сброс, л | 1250 | 1100 | 1000 |
| Объём переработки, м3/сут | 4 | 4 | 4 |
| Насос | нет | нет | нет |
| Глубина залегания трубы, см | до 60 | до 60 | от 40 до 80 |
| Высота, м | 2.38 | 2.8 | 2.6 |
| Длина, м | 2.16 | 2.4 | 2.16 |
| Ширина, м | 2.16 | 2.3 | 1.7 |
| Вес, кг | 355 | 438 | 630 |
| Гарантия производителя | 5 лет | 3 года | 3 года |
| Гарантия на пуско-наладочные работы (шеф монтаж): | 1 год | 1 год | 1 год |
| Гарантия при монтаже «под ключ»: | 1 год | 1 год | 1 год |
| Потребляемая энергия, кВт/сут | 0.4 | 3.2 | |
| Производитель | Евробион | Евролос | Топол-эко |
