Канализация Топас 50

Модельный ряд

2 компрессора

Цены на септик Топас 50

В наличии

Розничная цена:859 900 Р

Цена со скидкой -20%: 687 920 Р

Шеф-монтаж:34 375 Р

Цена на Топас 50 под ключ:762 920 Р

Бесплатный выезд инженера на Ваш участок!

В нашей компании действует индивидуальный подход. Позвоните нам — наша скидка Вас удивит!

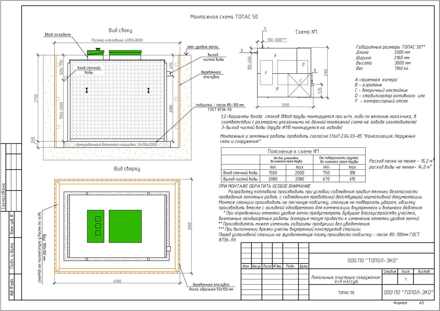
Технические характеристики септика Топас 50

Количество пользователей50

Залповый сброс1500 л

Объём переработки9 м3/сут

Насоснет

Глубина залегания трубы от 40 до 80см

Высота3 м

Длина3.25 м

Ширина2.2 м

Вес1160 кг

Гарантия производителя3 года

Гарантия на пуско-наладочные работы (шеф монтаж):1 год

Гарантия при монтаже «под ключ»:1 год

Потребляемая энергия7.2 кВт/сут

ПроизводительТопол-эко

  • ПР
    Модель со встроенным насосом, для принудительного отвода очищенных стоков из септика.
  • ЛОНГ (LONG)
    Высокий септик с удлинённой горловиной для врезки канализационной трубы на глубине 90-140 см.
  • УС
    Усиленная модель, используется для последующего наращивания УОСВ.

Комплектация Топас 50

Септик Топас 50 поставляются полностью укомплектованными и готовыми к эксплуатации. Изготавливаются и поставляются в едином корпусе.

Стандартная комплектация Топас 50:

  1. Труба канализационная раструбная ПП 110х2,7 L=0,1 м;
  2. Пруток сварочный ПП 7мм - 1 м;
  3. Компрессор 40-60 Вт - 2 шт.
  4. Компрессионный отвод – 2 шт.
  5. Технический паспорт – 1 шт.

Очистная станция может дополнительно комплектоваться световой или иной аварийной сигнализацией.

Цены на монтаж септика Топас 50

Септик Шеф-мон­таж Монтаж в определенный тип грунта Монтаж под ключ
Песок Суглинок Глина Плы­вун
Топас 50 34 375 руб. 75 000 руб. 75 000 руб. 75 000 руб. 90 000 руб. 762 920 руб.

Принцип работы

Этот септик осуществляет именно очистку, а не аккумуляцию хозяйственно-бытовых стоков. Работа станции Топас 50 основана на сочетании биологической очистки с процессом мелкопузырчатой аэрации (искусственная подача воздуха) для окисления составляющих хозяйственно-бытовых сточных вод. Процесс биологической очистки заключается в биохимическом разрушении микроорганизмами органических веществ. Сточные воды теряют склонность к загниванию, становятся прозрачными, значительно снижается бактериальное загрязнение.

Процесс очистки происходит в определенной последовательности:

  1. Сточные воды поступают в приемную камеру, уравнивающую их поступление, здесь же производится биологическое окисление.
  2. Далее стоки равномерно перекачиваются в аэротенк, где происходит окончательное разрушение органических соединений путем окисления активным илом. Активный ил – взвешенная в воде активная биомасса, осуществляющая процесс очистки сточных вод в аэробных биоокислителях.
  3. Далее смесь чистой воды и активного ила направляется во вторичный отстойник, где происходит отделение активного ила от чистой воды. Очищенная вода удаляется. Отработанный стабилизированный ил постепенно накапливается в стабилизаторе ила и периодически удаляется пользователем.

Сравнение аналогов

Евробион 50

Септик Евробион 50

по запросу

Эко-Гранд 50

Септик Эко-Гранд 50

722 500 Р850 000 Р

Евролос Экопром 50

Септик Евролос Экопром 50

906 110 Р953 800 Р

Основные
Количество пользователей 50 50 50
Залповый сброс, л 1900 1900
Объём переработки, м3/сут 8.9 10
Насос нет нет нет
Глубина залегания трубы, см от 40 до 80 до 66
Высота, м 3.01 2.4
Длина, м 3 6
Ширина, м 2.16 1.9
Вес, кг 1200 612
Гарантия производителя 5 лет 3 года 3 года
Гарантия на пуско-наладочные работы (шеф монтаж): 1 год 1 год 1 год
Гарантия при монтаже «под ключ»: 1 год 1 год 1 год
Потребляемая энергия, кВт/сут 6 8.64
Производитель Евробион Эко-Гранд Евролос
 товар в сравнении