Количество пользователей12
Залповый сброс830 л
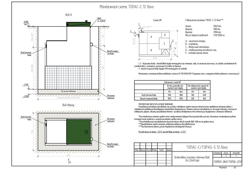
Объём переработки2.2 м3/сут
Насоснет
Глубина залегания трубы от 80 до 140см
Высота3.1 м
Длина2.1 м
Ширина1.2 м
Вес510 кг
Гарантия производителя3 года
Гарантия на пуско-наладочные работы (шеф монтаж):1 год
Гарантия при монтаже «под ключ»:1 год
Потребляемая энергия2 кВт/сут
ПроизводительТопол-эко
Документация
Топас-С 12 Лонг – это септик с удлиненной горловиной, высота которого составляет м. Удлиненная конструкция необходима для установки оборудования на большую глубину. Например, если на участке высокий уровень грунтовых вод, или уже проложены какие-либо коммуникации на стандартной глубине, канализационные трубы септика придется врезать гораздо ниже. Высота септика Топас-С 12 Лонг позволяет углубить трубопровод до 140 см.
Септик Топас-С 12 Long поставляются полностью укомплектованными и готовыми к эксплуатации. Изготавливаются и поставляются в едином корпусе.
Стандартная комплектация Топас-С 12 Long:
Очистная станция может дополнительно комплектоваться световой или иной аварийной сигнализацией.
| Септик | Шеф-монтаж | Монтаж в определенный тип грунта | Монтаж под ключ | |||
|---|---|---|---|---|---|---|
| Песок | Суглинок | Глина | Плывун | |||
| Топас-С 12 Лонг | 12 813 руб. | 35 000 руб. | 35 000 руб. | 35 000 руб. | 50 000 руб. | 269 960 руб. |
| Основные | |
| Количество пользователей | 12 |
| Залповый сброс, л | 920 |
| Объём переработки, м3/сут | 2.4 |
| Насос | нет |
| Глубина залегания трубы, см | до 120 |
| Высота, м | 2.98 |
| Длина, м | 1.7 |
| Ширина, м | 2 |
| Вес, кг | 238 |
| Гарантия производителя | 5 лет |
| Гарантия на пуско-наладочные работы (шеф монтаж): | 1 год |
| Гарантия при монтаже «под ключ»: | 1 год |
| Потребляемая энергия, кВт/сут | |
| Производитель | Евробион |
