Количество пользователей75
Залповый сброс2350 л
Объём переработки12 м3/сут
Насосесть
Глубина залегания трубы от 40 до 130см
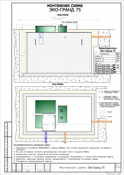
Высота3.01 м
Длина4 м
Ширина2.16 м
Вес1500 кг
Гарантия производителя3 года
Гарантия на пуско-наладочные работы (шеф монтаж):1 год
Гарантия при монтаже «под ключ»:1 год
Потребляемая энергия12.3 кВт/сут
ПроизводительЭко-Гранд
Документация
Эко-Гранд 75 Пр – это септик со встроенным насосом, который обеспечивает принудительный отвод чистой воды в точку сброса. Этот процесс является полностью автоматическим, отвод воды осуществляется в канаву, дренажный элемент или колодец. Применение данной модели рекомендуется в регионах с уровнем грунтовых вод выше нормы и при условии, что глубина врезки канализационной трубы до 130 см.
Стандартная комплектация поставки Станции Биологической Очистки "Эко-Гранд 75 Пр"
| Септик | Шеф-монтаж | Монтаж в определенный тип грунта | Монтаж под ключ | |||
|---|---|---|---|---|---|---|
| Песок | Суглинок | Глина | Плывун | |||
| Эко-Гранд 75 Пр | 36 250 руб. | 70 000 руб. | 70 000 руб. | 70 000 руб. | 85 000 руб. | 1 047 500 руб. |
| Основные | |
| Количество пользователей | 75 |
| Залповый сброс, л | 2250 |
| Объём переработки, м3/сут | 12 |
| Насос | нет |
| Глубина залегания трубы, см | от 40 до 80 |
| Высота, м | 3 |
| Длина, м | 4.16 |
| Ширина, м | 2.2 |
| Вес, кг | 1490 |
| Гарантия производителя | 3 года |
| Гарантия на пуско-наладочные работы (шеф монтаж): | 1 год |
| Гарантия при монтаже «под ключ»: | 1 год |
| Потребляемая энергия, кВт/сут | 11.8 |
| Производитель | Топол-эко |
