Цены на септик Топас 10 Лонг Пр Ус
В наличии
Розничная цена:379 900 Р
Цена со скидкой -20%: 303 920 Р
Шеф-монтаж:12 813 Р
Цена на Топас 10 Лонг Пр Ус под ключ:338 920 Р
Бесплатный выезд инженера на Ваш участок!
В нашей компании действует индивидуальный подход. Позвоните нам — наша скидка Вас удивит!
Количество пользователей10
Залповый сброс760 л
Объём переработки2 м3/сут
Насоснет
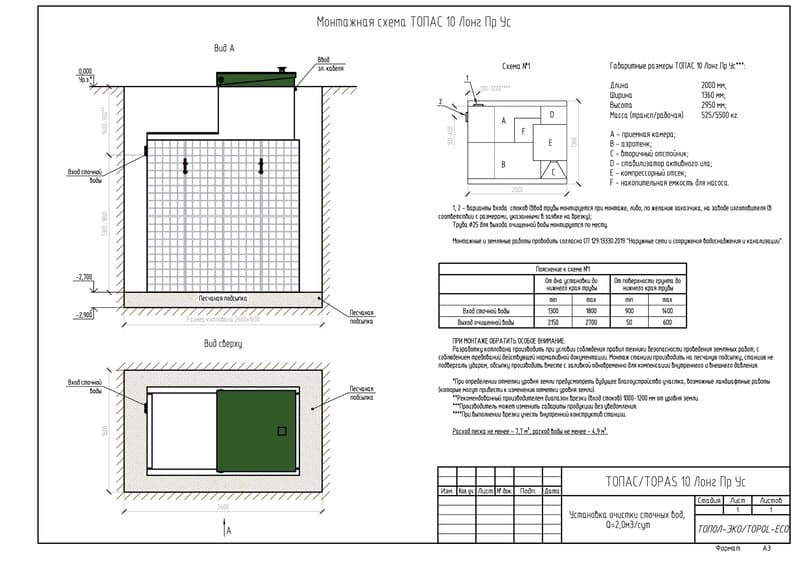
Глубина залегания трубы от 80 до 140см
Высота3.1 м
Длина2.1 м
Ширина1.3 м
Вес480 кг
Гарантия производителя3 года
Гарантия на пуско-наладочные работы (шеф монтаж):1 год
Гарантия при монтаже «под ключ»:1 год
Потребляемая энергия2.1 кВт/сут
ПроизводительТопол-эко
Документация
Топас 10 Лонг Пр Ус – это септик с удлиненным и усиленным корпусом для монтажа в условиях повышенного давления грунта. Усиленный корпус придает станции дополнительную устойчивость к деформациям и нагрузкам. Высота септика составляет м, что позволяет осуществлять врезку труб на глубине до 140 см.
Септик Топас 10 Лонг Пр Ус поставляются полностью укомплектованными и готовыми к эксплуатации. Изготавливаются и поставляются в едином корпусе.
Стандартная комплектация Топас 10 Лонг Пр Ус:
Очистная станция может дополнительно комплектоваться световой или иной аварийной сигнализацией.
| Септик | Шеф-монтаж | Монтаж в определенный тип грунта | Монтаж под ключ | |||
|---|---|---|---|---|---|---|
| Песок | Суглинок | Глина | Плывун | |||
| Топас 10 Лонг Пр Ус | 12 813 руб. | 35 000 руб. | 35 000 руб. | 35 000 руб. | 50 000 руб. | 338 920 руб. |
