Количество пользователей10
Залповый сброс760 л
Объём переработки2 м3/сут
Насоснет
Глубина залегания трубы от 40 до 80см
Высота2.6 м
Длина2.1 м
Ширина1.2 м
Вес365 кг
Гарантия производителя3 года
Гарантия на пуско-наладочные работы (шеф монтаж):1 год
Гарантия при монтаже «под ключ»:1 год
Потребляемая энергия2.1 кВт/сут
ПроизводительТопол-эко
Документация
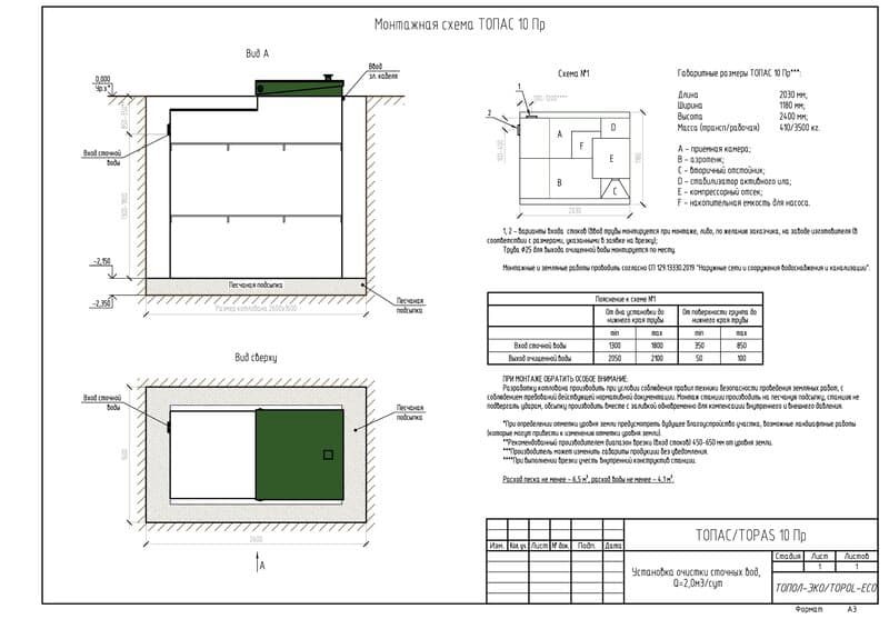
Топас 10 Пр – это септик со встроенным насосом, который обеспечивает принудительный отвод чистой воды в точку сброса. Этот процесс является полностью автоматическим, отвод воды осуществляется в канаву, дренажный элемент или колодец. Применение данной модели рекомендуется в регионах с уровнем грунтовых вод выше нормы и при условии, что глубина врезки канализационной трубы до 80 см.
Септик Топас 10 Пр поставляются полностью укомплектованными и готовыми к эксплуатации. Изготавливаются и поставляются в едином корпусе.
Стандартная комплектация Топас 10 Пр:
Очистная станция может дополнительно комплектоваться световой или иной аварийной сигнализацией.
| Септик | Шеф-монтаж | Монтаж в определенный тип грунта | Монтаж под ключ | |||
|---|---|---|---|---|---|---|
| Песок | Суглинок | Глина | Плывун | |||
| Топас 10 Пр | 12 813 руб. | 35 000 руб. | 35 000 руб. | 35 000 руб. | 50 000 руб. | 268 840 руб. |
| Основные | |||
| Количество пользователей | 10 | 10 | 10 |
| Залповый сброс, л | 550 | 690 | 800 |
| Объём переработки, м3/сут | 2 | 2 | 2 |
| Насос | нет | нет | нет |
| Глубина залегания трубы, см | от 60 до 120 | до 85 | до 60 |
| Высота, м | 1.7 | 2.36 | 2.38 |
| Длина, м | 2 | 1.56 | 1.75 |
| Ширина, м | 2 | 1.56 | 2 |
| Вес, кг | 165 | 220 | 265 |
| Гарантия производителя | 5 лет | 3 года | 5 лет |
| Гарантия на пуско-наладочные работы (шеф монтаж): | 1 год | 1 год | 1 год |
| Гарантия при монтаже «под ключ»: | 1 год | 1 год | 1 год |
| Потребляемая энергия, кВт/сут | 3 | ||
| Производитель | ГРИНЛОС | Волгарь | Евробион |
